









VG Real Estate vă propune spre vânzare un apartament situat în zona Hanul cu Peste, lac Siutghiol ideal pentru : familie, investiție
Informații generale
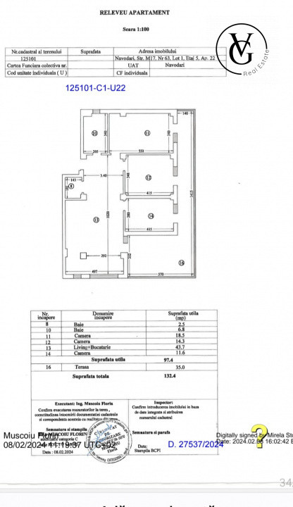
• Tipul apartamentului: 4 camere, tip:open-space.
• Suprafața:
• Utilă: 133 m²;
• Construită: 150 m².
• Etajul: 5/5
• Anul construcției: 2024
• Tipul clădirii: bloc nou, material de construcție: cărămidă, beton.
Detalii specifice:
• Compartimentare:
: bucătărie, living, 3 dormitoare, 2 băi, terasa
• Dotări și finisaje: tâmplărie PVC
• Se preda nemobilat.
• Electrocasnice nu sunt incluse.
• Utilități: apă, gaz, curent electric, canalizare, internet/cablu TV
Avantaje și proximități
• Locuri de parcare: disponibilitate la cerere.
• Zona și facilități: magazine, școli, grădinițe, stații de transport public, centre comerciale, parcuri, etc.
• Accesibilitate: acces facil la bulevard, centru orașului, autostrăzi
Preț și contact
• Pentru mai multe detalii sau pentru a programa o vizionare, nu ezitati sa ne contactati!