



VG Real Estate vă propune spre vânzare cu comision 0% pentru cumparator, o varietate de apartamente situate în zona Compozitorilor, ideale atat pentru familie/cuplu cat si pentru investitie.
Informații generale
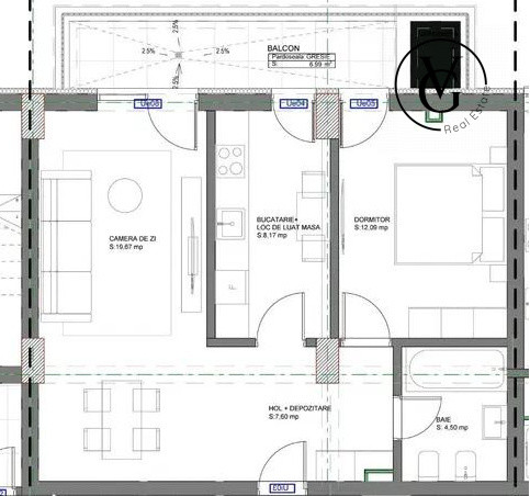
• Tipurile apartamentelor: 2 camere, tip: decomandat/semidecomandat/open-space.
• Suprafața:
• Utilă: 52/54/56/60 m²;
• Construită: 68 m².
• Disponibilititate la diferite etaje ale imobilelor.
• Anul construcției: 2026 pentru corp B, 2027 pentru corp C.
• Termen de predare : primavara 2026, respectiv primavara 2027.
• Preturile difera in functie de avans.
Detalii specifice:
• Compartimentare:
: bucătărie, living, dormitor, baie, hol, balcon
• Dotări și finisaje: apartamentele se predau la alb, sau finisate la cheie contracost.
• Utilități: apă, gaz, curent electric, canalizare, internet/cablu TV, încălzire centrală.
Avantaje și proximități
• Locuri de parcare: loc propriu de parcare contracost.
• Zona și facilități: supermarket LIDL peste drum, școli, grădinițe, Academia Navala, Ceronav, stații de transport public, centrul comercial VIVO, spatii verzi in interiorul ansamblului.
Contact:
• Pentru mai multe detalii sau pentru a programa o vizionare, nu ezitati sa ne contactati!